Caractéristiques principales
Appartements neufs à Los Balcones, Torrevieja
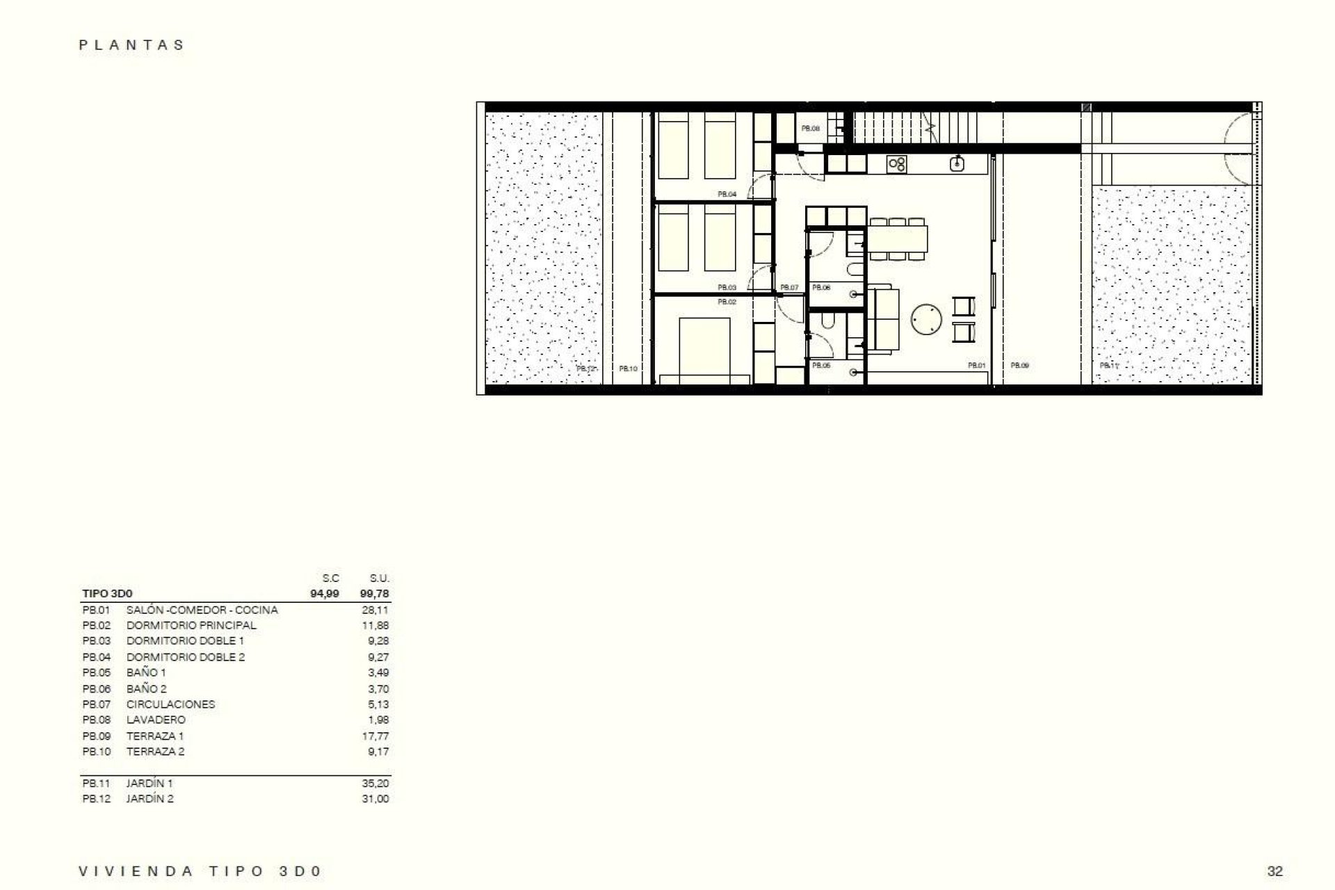
Chambres: 3
Nbr. Sdb: 2
Construit: 99m2
Construits: 94m2
Terrain: 76m2
Piscine: Oui
Les caractéristiques
Distance à la plage: 3500 Mts.
Near Golf / Golf Resort Property
Near Schools
Near Commercial Center
Location: Coastal, Urbanisation
Garden
Air Conditioning: Pre-Installed
Under-Build / Basement
Double Bedrooms: 3
Useable Build Space: 94 Msq.
Space
Terrace: 27 Msq.
Beach: 3500 Meters
Storage / Trastero
Communal Pool
Gated
Number of Parking Spaces: 1
La description
Appartements neufs à Los Balcones, Torrevieja
Maisons modernes dans un quartier résidentiel privilégié
Découvrez ce nouveau complexe résidentiel attrayant situé à Los Balcones, l'un des quartiers les plus populaires et les mieux établis de la périphérie de Torrevieja. Situé dans un environnement paisible et bénéficiant d'un excellent accès à tous les services essentiels, ce complexe se trouve à seulement 4 km des plages de sable de la Costa Blanca. Los Balcones est connu pour son atmosphère détendue, ses larges rues, ses espaces verts et sa proximité avec les hôpitaux, les supermarchés, les restaurants et les centres commerciaux, ce qui en fait un endroit idéal pour y vivre toute l'année ou pour y passer ses vacances.
Appartements contemporains avec espaces extérieurs privés
Le complexe se compose de 52 appartements modernes construits sur une surface totale de 6700 m2. Chaque propriété comprend une place de parking privée et un débarras au sous-sol. Les logements offrent 2 ou 3 chambres et 2 salles de bains, dont une en suite.
Les acheteurs peuvent choisir entre des appartements au rez-de-chaussée avec un jardin privé ou des logements aux étages supérieurs avec une terrasse spacieuse et un solarium privé. Ces agencements sont conçus pour maximiser la lumière naturelle et offrir des espaces de vie intérieurs et extérieurs confortables afin de profiter du climat méditerranéen tout au long de l'année.
Espaces communs conçus pour la détente
Le projet est organisé en quatre blocs entourant un grand espace commun central. Ce cœur vert du complexe comprend une piscine avec un espace réservé aux enfants et de magnifiques jardins paysagers. Ces espaces communs sont parfaits pour se détendre, socialiser et passer du temps en famille dans un environnement sûr et convivial.
Caractéristiques de qualité et conception économe en énergie
Chaque appartement est construit selon les normes modernes et comprend la pré-installation d'une climatisation canalisée, un système d'eau chaude aérothermique pour une meilleure efficacité énergétique, un éclairage extérieur et des menuiseries extérieures à double vitrage. Les cuisines sont entièrement équipées, offrant un espace fonctionnel et élégant pour la vie quotidienne.
Ces caractéristiques garantissent un haut niveau de confort, un entretien réduit et une consommation d'énergie moindre, rendant les maisons à la fois pratiques et durables.
Excellent emplacement à proximité des plages et des terrains de golf
Los Balcones bénéficie d'un emplacement stratégique à proximité de nombreux points d'intérêt. Les plages de Torrevieja sont à environ 4 km. Plusieurs terrains de golf renommés, tels que Villamartin Golf, Las Ramblas Golf et Campoamor Golf, se trouvent à 10-15 km. L'hôpital universitaire de Torrevieja est à moins de 2 km, ce qui ajoute à la commodité et à la tranquillité d'esprit.
Le centre-ville de Torrevieja se trouve à environ 5 km et est relié par bus à Los Balcones, où vous trouverez un large éventail de magasins, de restaurants, de lieux culturels et une marina animée. L'aéroport international d'Alicante est situé à environ 42 km, offrant des liaisons internationales faciles. Le port de Torrevieja se trouve à environ 6 km.
Idéal pour y vivre ou investir
Avec son design moderne, ses excellentes parties communes et son emplacement privilégié à proximité des plages, du golf et des services, ce nouveau complexe résidentiel à Los Balcones Torrevieja est parfait comme résidence permanente, maison de vacances ou opportunité d'investissement.
Contactez-nous dès aujourd'hui pour obtenir plus d'informations ou pour organiser une visite de ces appartements neufs à Los Balcones, Torrevieja.
Lire plus
Zone
Los Altos
Los Altos, Torrevieja : un endroit idéal pour vivre ou investir
Los Altos est l'un des quartiers les plus recherchés de Torrevieja, situé dans la partie sud de la ville et à proximité d'Orihuela Costa. Son excellent emplacement, ses services et son atmosphère résidentielle font de ce quartier une option attrayante aussi bien pour ceux qui recherchent un logement permanent que pour les investisseurs sur le marché immobilier.
Où se trouve Los Altos ?
Los Altos est situé à la périphérie de Torrevieja, à seulement 5 minutes en voiture des plages les plus populaires, telles que Punta Prima et Playa de Los Náufragos. Sa proximité avec la N-332 permet un accès rapide à d'autres zones d'intérêt, telles que La Zenia, Playa Flamenca et le centre de Torrevieja.
Avantages de vivre à Los Altos
1. Excellente communication et services
Los Altos offre un accès facile à tout ce qui est nécessaire pour une vie confortable :
• Centres commerciaux tels que La Zenia Boulevard (à seulement 10 minutes) et Habaneras.
• Supermarchés (Consum, Aldi, Mercadona, Lidl).
• Centres médicaux, tels que l’hôpital universitaire de Torrevieja.
• Écoles et collèges internationaux et espagnols.
2. Large gamme d'options immobilières
À Los Altos, les acheteurs peuvent trouver de tout, des appartements modernes aux villas individuelles avec piscines privées. Les complexes résidentiels de la région disposent généralement de piscines communes, de jardins et d'espaces de loisirs, idéaux pour les familles et les résidents en quête de tranquillité.
3. Proximité des plages et des loisirs
Bien que Los Altos ne soit pas en bord de mer, il se trouve à seulement quelques minutes de certaines des plus belles plages de la Costa Blanca. De plus, le quartier offre un accès à de multiples possibilités de restauration, bars et activités de loisirs, ce qui en fait un lieu de vie dynamique.
4. Idéal pour les investisseurs
La forte demande de locations de vacances et de longs séjours fait de Los Altos une zone avec une grande rentabilité immobilière. Sa combinaison de proximité avec la plage, de services et de tranquillité attire aussi bien les touristes que les résidents européens qui souhaitent passer de longues périodes sur la Costa Blanca.
Conclusion
Los Altos est l'un des meilleurs quartiers de Torrevieja pour acheter une maison, que ce soit pour y vivre toute l'année ou comme investissement. Son infrastructure moderne, son excellent emplacement et sa qualité de vie en font une option imbattable pour ceux qui recherchent une propriété sur la Costa Blanca.
Si vous êtes intéressé par l'achat d'une maison à Los Altos, Torrevieja, chez Iberohomes, nous pouvons vous aider à trouver la meilleure option. Contactez-nous pour plus d'informations!
Finances
Cette information donnée ici est sujette à des erreurs et ne fait partie d'aucun contrat. L'offre peut être modifiée ou retirée sans préavis. Les prix n'incluent pas les coûts d'achat
- Livres sterling: 295.130 GBP
- Franc suisse: 312.766 CHF
- Yuan chinois: 2.722.278 CNY
- Dollar: 398.208 USD
- Couronne suédoise: 3.678.800 SEK
- La couronne norvégienne: 3.723.850 NOK