Key features
New Build Residential Apartments in Los Balcones, Torrevieja
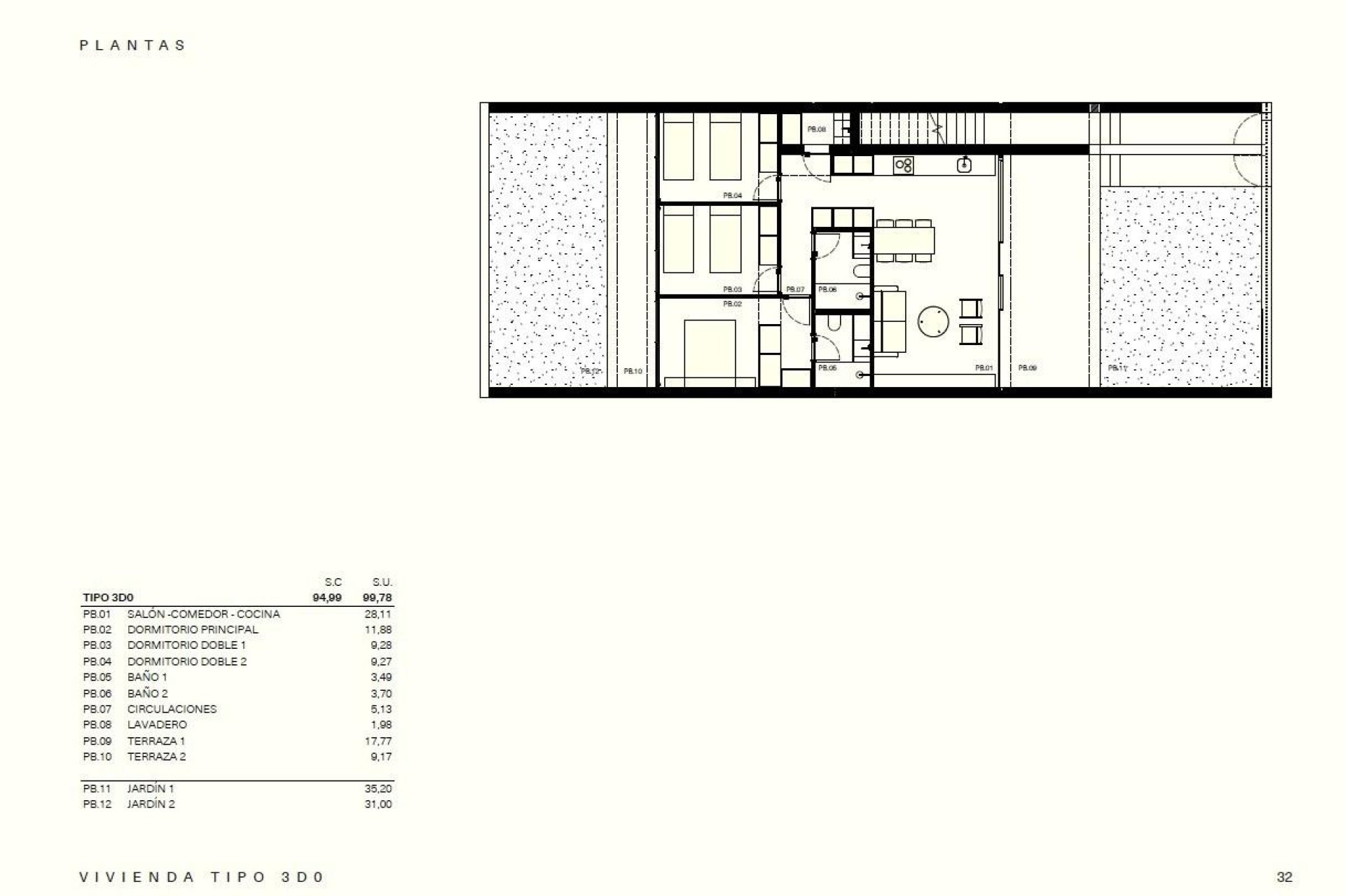
Bedrooms: 3
Bathrooms: 2
Built: 99m2
Usable: 94m2
Plot: 76m2
Pool: Yes
Features
Distance to beach: 3500 Mts.
Useable Build Space: 94 Msq.
Space
Terrace: 27 Msq.
Beach: 3500 Meters
Storage / Trastero
Communal Pool
Gated
Number of Parking Spaces: 1
Near Golf / Golf Resort Property
Near Schools
Near Commercial Center
Location: Coastal, Urbanisation
Garden
Air Conditioning: Pre-Installed
Under-Build / Basement
Double Bedrooms: 3
Description
New Build Residential Apartments in Los Balcones, Torrevieja
Modern Homes in a Prime Residential Area
Discover this attractive new build residential complex located in Los Balcones, one of the most popular and established neighborhoods on the outskirts of Torrevieja. Set in a peaceful environment with excellent access to all essential services, this development is just 4 km from the sandy beaches of the Costa Blanca. Los Balcones is known for its relaxed atmosphere, wide streets, green areas and proximity to hospitals, supermarkets, restaurants and shopping centers, making it ideal for year round living or holiday use.
Contemporary Apartments with Private Outdoor Spaces
The complex consists of 52 modern apartments built on a total surface of 6700 m2. Each property includes a private parking space and a storage room in the underground. The homes offer 2 or 3 bedrooms and 2 bathrooms, one of them en suite.
Buyers can choose between ground floor apartments with a private garden or upper floor homes with a spacious terrace and a private solarium. These layouts are designed to maximize natural light and provide comfortable indoor and outdoor living spaces to enjoy the Mediterranean climate all year round.
Communal Areas Designed for Relaxation
The project is arranged into four blocks surrounding a large central communal area. This green heart of the development features a swimming pool with a dedicated children area and beautifully landscaped gardens. These shared spaces are perfect for relaxation, socializing and family time in a safe and friendly environment.
Quality Features and Energy Efficient Design
Each apartment is built to modern standards and includes pre installation of ducted air conditioning, an aerothermal hot water system for improved energy efficiency, exterior lighting and double glazed exterior carpentry. The kitchens come fully furnished, offering a functional and stylish space for daily living.
These features ensure a high level of comfort, low maintenance and reduced energy consumption, making the homes both practical and sustainable.
Excellent Location Near Beaches and Golf
Los Balcones offers a strategic location close to many points of interest. The beaches of Torrevieja are approximately 4 km away. Several renowned golf courses such as Villamartin Golf, Las Ramblas Golf and Campoamor Golf are within 10 to 15 km. The University Hospital of Torrevieja is less than 2 km away, adding convenience and peace of mind.
Torrevieja town center is around 5 km away, connected by bus with Los Balcones, where you will find a wide range of shops, restaurants, cultural venues and a lively marina. Alicante International Airport is located about 42 km away, providing easy international connections. The port of Torrevieja is approximately 6 km away.
Ideal for Living or Investment
With its modern design, excellent communal areas and prime location near beaches, golf and services, this new residential complex in Los Balcones Torrevieja is perfect as a permanent residence, holiday home or investment opportunity.
Contact us today for more information or to arrange a viewing of these new build apartments in Los Balcones, Torrevieja.
Read more
Zone
Los Altos
Los Altos, Torrevieja: An Ideal Place to Live or Invest
Los Altos is one of the most sought-after areas of Torrevieja, located in the southern part of the city and close to Orihuela Costa. Its excellent location, services and residential atmosphere make this neighborhood an attractive option for those looking for a permanent home as well as for investors in the real estate market.
Where is Los Altos?
Los Altos is located on the outskirts of Torrevieja, just 5 minutes by car from the most popular beaches, such as Punta Prima and Playa de Los Náufragos. Its proximity to the N-332 allows quick access to other areas of interest, such as La Zenia, Playa Flamenca and the center of Torrevieja.
Advantages of living in Los Altos
1. Excellent communication and services
Los Altos offers easy access to everything necessary for a comfortable life:
• Shopping centers such as La Zenia Boulevard (just 10 minutes away) and Habaneras.
• Supermarkets (Consum, Aldi, Mercadona, Lidl).
• Medical centres, such as the Torrevieja University Hospital.
• International and Spanish schools and colleges.
2. Wide range of real estate
In Los Altos, buyers can find everything from modern apartments to independent villas with private pools. The developments in the area usually have communal pools, gardens and recreational areas, ideal for families and residents looking for tranquillity.
3. Closeness to beaches and leisure
Although Los Altos is not on the beachfront, it is just a few minutes from some of the best beaches on the Costa Blanca. In addition, the area has access to multiple dining options, bars and leisure activities, making it a vibrant place to live.
4. Ideal for investors
The high demand for holiday and long-stay rentals makes Los Altos an area with great real estate profitability. Its combination of proximity to the beach, services and tranquillity attracts both tourists and European residents looking to spend long periods on the Costa Blanca.
Conclusion
Los Altos is one of the best areas of Torrevieja to buy a home, whether to live all year round or as an investment. Its modern infrastructure, excellent location and quality of life make it an unbeatable option for those looking for a property on the Costa Blanca.
If you are interested in buying a house in Los Altos, Torrevieja, at Iberohomes we can help you find the best option. Contact us for more information!
Finances
This info given here is subject to errors and do not form part of any contract. The offer can be changed or withdrawn without notice. Prices do not include purchase costs.
- Pounds: 295.130 GBP
- Swiss franc: 312.766 CHF
- Chinese yuan: 2.722.278 CNY
- Dollar: 398.208 USD
- Swedish krona: 3.678.800 SEK
- The Norwegian crown: 3.723.850 NOK