Belangrijkste kenmerken
Nieuwbouwwoningen en bungalows te koop in Pilar de la Horadada, vlakbij het strand
Kamers: 3
Badkamers: 2
Gebouwd: 116m2
Nuttig: 100m2
Perceel: 164m2
Zwembad: Ja
Kenmerken
Afstand naar het strand: 2600 Mts.
Locatie: Kust, Urbanisatie
Tuin
Bij Bushalte
Air Conditioning: Vooraf geïnstalleerd
Under-Build / Basement
2 persoonskamer: 3
Useable Build Space: 100 Msq.
Ruimte
Strand: 2600 Meters
Terrace: 35 Msq.
Wasserette
Gezamenlijk zwembad
Afgesloten
Aantal parkeerplaatsen: 1
Dichtbij scholen
Dichtbij winkelcentrum
Beschrijving
Nieuwbouwwoningen en bungalows te koop in Pilar de la Horadada, vlakbij het strand
Exclusief woonproject aan de zuidelijke Costa Blanca
Ontdek dit moderne nieuwbouwproject in Pilar de la Horadada, de meest zuidelijke stad aan de Costa Blanca. Dit boetiekproject biedt een selectie van eigentijdse appartementen en bungalows die zijn ontworpen om comfort, functionaliteit en een mediterrane levensstijl te combineren.
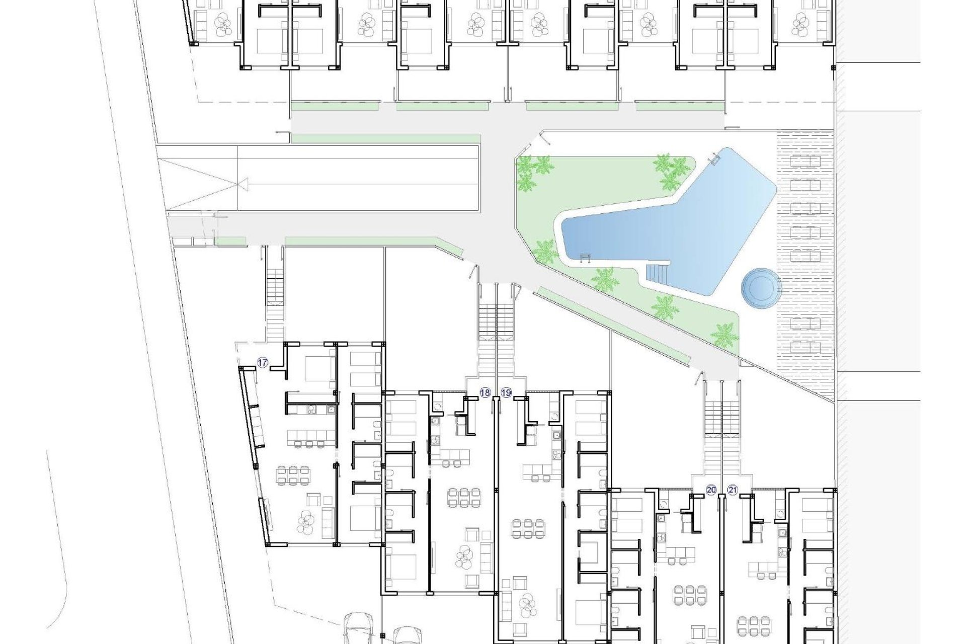
Het project bestaat uit slechts 26 zorgvuldig ontworpen woningen met 2 of 3 slaapkamers en 2 badkamers, waardoor het een ideale optie is voor zowel permanente bewoning als vakantieverblijf. Het complex is gelegen in een rustige woonwijk op loopafstand van het stadscentrum, waar bewoners kunnen genieten van restaurants, cafés, supermarkten, lokale winkels en alle essentiële voorzieningen.
Pilar de la Horadada is een charmant Spaans stadje dat bekend staat om zijn gastvrije sfeer, levendige hoofdstraat en prachtige pleinen. Met uitstekende verbindingen naar nabijgelegen kustgebieden en golfresorts is het een populaire bestemming voor internationale kopers die op zoek zijn naar zon en levenskwaliteit.
Appartementen en bungalows met privé buitenruimtes
Het project biedt twee verschillende soorten woningen die geschikt zijn voor verschillende levensstijlen.
Het complex omvat 16 moderne appartementen. Kopers kunnen kiezen tussen appartementen op de begane grond met privétuinen, appartementen op de middelste verdieping met ruime terrassen of penthouses met privéterrassen en solariums op het dak. Elk appartement beschikt over een parkeerplaats en een berging in de ondergrondse garage.
Er zijn ook 10 bungalows beschikbaar. De bungalows op de begane grond hebben een eigen tuin en parkeerplaats op het perceel, terwijl de bungalows op de bovenste verdieping beschikken over terrassen en een eigen solarium. Deze woningen op de bovenste verdieping hebben een parkeerplaats en een berging in de kelder.
Alle woningen zijn ontworpen met een licht interieur, een open indeling en comfortabele woonruimtes die op natuurlijke wijze overgaan in de buitenruimtes.
Hoogwaardige bouw en moderne voorzieningen
De woningen zijn gebouwd met hoogwaardige materialen en moderne systemen om het hele jaar door comfort en energie-efficiëntie te garanderen.
Ingerichte keukens
Volledig uitgeruste badkamers met doucheschermen en vloerverwarming
Energiezuinig aerothermisch warmwatersysteem
Voorbereiding voor airconditioning met luchtkanalen
Bewoners profiteren ook van een gemeenschappelijk zwembad omgeven door aangelegde tuinen en ligweiden, waardoor een ontspannen omgeving ontstaat om te genieten van het mediterrane klimaat.
Uitstekende locatie dicht bij stranden en golfbanen
Het project ligt op een strategische locatie, dicht bij enkele van de beste stranden en golfbanen in de regio.
Strand van Torre de la Horadada 3 km
Strand van Mil Palmeras 3 km
Lo Romero Golf 6 km
Internationale luchthaven van Murcia 45 km
Luchthaven van Alicante Elche 75 km
Het gebied biedt ook uitstekende wegverbindingen naar nabijgelegen kustplaatsen, jachthavens en recreatiefaciliteiten langs zowel de Costa Blanca als de Costa Calida.
Vind uw nieuwe thuis in Pilar de la Horadada
Dit aantrekkelijke nieuwbouwcomplex biedt moderne woningen, hoogwaardige afwerking en een fantastische locatie dicht bij het strand. Neem vandaag nog contact met ons op voor meer informatie of om een bezichtiging te regelen en uw nieuwe woning aan de Costa Blanca te bemachtigen.
712
Lees meer
Zone
Pilar de la Horadada
Pilar de la Horadada: een mediterrane charme om te leven en te investeren
Pilar de la Horadada, het meest zuidelijke stadje in de provincie Alicante, is een bestemming die de essentie van de Middellandse Zee combineert met een uitstekende levenskwaliteit. De nabijheid van de zee, het bevoorrechte klimaat en de groeiende vastgoedontwikkeling maken het een ideale optie voor zowel woningzoekers als voor investeerders aan de Costa Blanca.
Een plek met geschiedenis en traditie
De naam Pilar de la Horadada komt van de 16e-eeuwse uitkijktoren, die de kust beschermde tegen aanvallen van piraten. In de loop der jaren is het uitgegroeid van een klein agrarisch centrum tot een levendige stad met een gastvrije gemeenschap en moderne infrastructuur.
Stranden en natuur
Pilar de la Horadada heeft een kustlijn van ruim 5 kilometer met fijne zandstranden zoals Mil Palmeras, Playa de las Higuericas en Playa del Conde. Bovendien is de boulevard ideaal om van de zonsondergang aan zee te genieten.
In het binnenland kunnen natuurliefhebbers de Rambla de Río Seco verkennen, een natuurgebied met wandelpaden omgeven door kliffen en inheemse vegetatie.
Diensten en connectiviteit
Een van de grote attracties van Pilar de la Horadada is de uitstekende ligging. Het ligt op slechts 10 minuten van Orihuela Costa, dicht bij bekende golfbanen zoals Lo Romero Golf en op minder dan 30 minuten van de luchthaven van Murcia.
De stad biedt alle essentiële voorzieningen, van scholen en hogescholen tot medische centra, supermarkten en een gevarieerd gastronomisch aanbod met bars en restaurants waar u de mediterrane keuken kunt proeven.
Vastgoedbeleggingen
De vastgoedmarkt in Pilar de la Horadada is de laatste jaren aanzienlijk gegroeid, met een breed aanbod aan huizen, variërend van moderne appartementen tot luxe villa's. De prijs-kwaliteitverhouding vergeleken met andere gebieden aan de Costa Blanca maakt het een aantrekkelijke optie voor nationale en internationale kopers.
Een bestemming met toekomst
Pilar de la Horadada blijft zich ontwikkelen, met stedelijke projecten die de infrastructuur en de levenskwaliteit verbeteren. De combinatie van traditie, natuur en moderniteit maakt het de ideale plek om u te vestigen of te genieten van een onvergetelijke vakantie.
Bent u op zoek naar een woning in deze omgeving? Dan helpen wij van Iberohomes u graag bij het vinden van uw ideale woning. Neem contact met ons op en ontdek alles wat Pilar de la Horadada te bieden heeft.
Wilt u dat ik meer informatie geef over een bepaald aspect?
Financiën
Deze informatie is hier onderhevig aan fouten en maakt geen deel uit van een contract. De aanbieding kan zonder kennisgeving worden gewijzigd of ingetrokken. Prijzen zijn exclusief aankoopkosten.
- Pounds: 391.725 GBP
- Zwitserse frank: 411.480 CHF
- Chinese yuan: 3.563.730 CNY
- Dollar: 523.260 USD
- Zweedse kroon: 4.941.900 SEK
- De Noorse kroon: 4.880.250 NOK