Moderne nieuwbouwappartementen in San Cayetano, Torrepacheco, Murcia
Eigentijds wonen in een rustige mediterrane omgeving
Dit exclusieve nieuwe wooncomplex ligt in San Cayetano, Murcia, onderdeel van de gemeente Torre Pacheco, op slechts 9 km van de zee en omgeven door verschillende gerenommeerde golfbanen. Het project combineert rust, comfort en eigentijds design en biedt een ideale omgeving voor permanent wonen, vakantiegebruik of investering aan de Costa Calida.
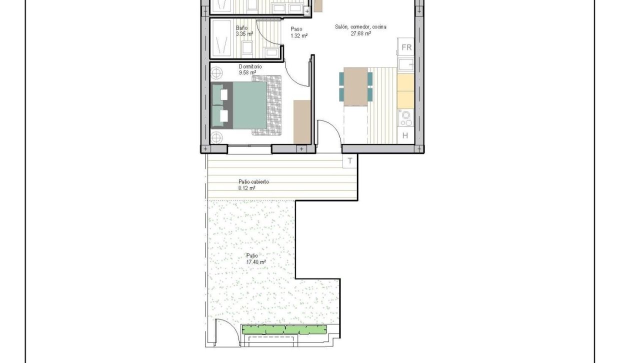
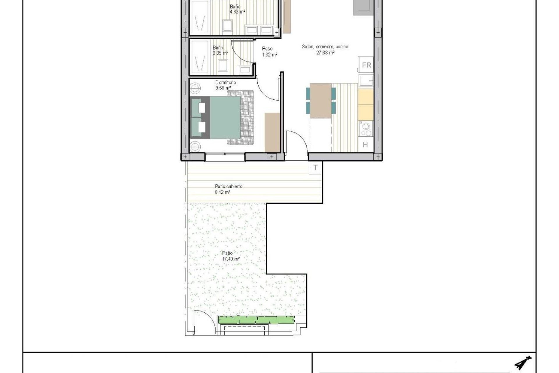
Het project bestaat uit 72 appartementen met 2 en 3 slaapkamers en 2 badkamers, waarvan één ensuite, verdeeld over vier moderne gebouwen. Er is ook een tweede fase met bungalows en villa's gepland, wat de waarde en aantrekkingskracht van het gebied nog verder vergroot.
Ontworpen gemeenschappelijke ruimtes voor ontspanning en welzijn
Bewoners kunnen genieten van zorgvuldig aangelegde gemeenschappelijke ruimtes met twee zwembaden, prachtige tuinen en een volledig uitgeruste fitnessruimte. Deze ruimtes creëren een aangename en sociale omgeving waar buren kunnen ontspannen, sporten en genieten van de mediterrane levensstijl.
Het wooncomplex beschikt ook over 40 kW aan fotovoltaïsche zonnepanelen die helpen de elektriciteitskosten van de gemeenschap te ondersteunen en bijdragen aan een duurzamere en energiezuinigere leefomgeving.
Appartementen met privébuitenruimtes en solarium
Elk appartement is ontworpen om optimaal te profiteren van het buitenleven. De woningen op de begane grond hebben een privétuin, de appartementen op de eerste verdieping hebben een ruim terras en de woningen op de bovenste verdieping hebben zowel een terras als een privé-solarium op het dak. Alle woningen hebben een zomerkeuken op het terras of solarium, perfect om het hele jaar door van de zon te genieten.
Alle woningen zijn voorzien van een parkeerplaats buiten en een privéberging in de kelder, wat extra gemak en functionaliteit biedt.
Kwaliteitsvoorzieningen en energiezuinige installaties
Deze nieuwbouwwoningen worden opgeleverd met een hoogwaardige afwerking en moderne installaties die comfort en functionaliteit garanderen, waaronder:
Volledig ingerichte keuken met apparatuur
Volledig uitgeruste badkamers met meubilair, spiegel, verlichting en doucheschermen
Voorbereiding voor airconditioning met luchtkanalen
Aerothermisch systeem voor warm water
De combinatie van moderne materialen en energiezuinige systemen maakt deze woningen ideaal voor gebruik het hele jaar door.
Uitstekende locatie dicht bij golf, stranden en voorzieningen
San Cayetano is een rustig en goed bereikbaar dorp met lokale voorzieningen, winkels en diensten. Dankzij de strategische ligging zijn de stranden, golfbanen en belangrijke vervoersverbindingen gemakkelijk bereikbaar.
Belangrijke afstanden tot bezienswaardigheden zijn onder andere:
Stranden van Mar Menor 9 km
Roda Golf 6 km
La Serena Golf 14 km
Los Alcazares 10 km
Cartagena 30 km
Luchthaven Murcia Corvera 25 km
Luchthaven Alicante 90 km
Verzeker u vandaag nog van uw woning in San Cayetano
Dit moderne wooncomplex biedt een uitstekende gelegenheid om te genieten van het mediterrane leven in een rustige maar goed bereikbare omgeving. Neem vandaag nog contact met ons op voor meer informatie en reserveer uw nieuwbouwappartement in San Cayetano.
712