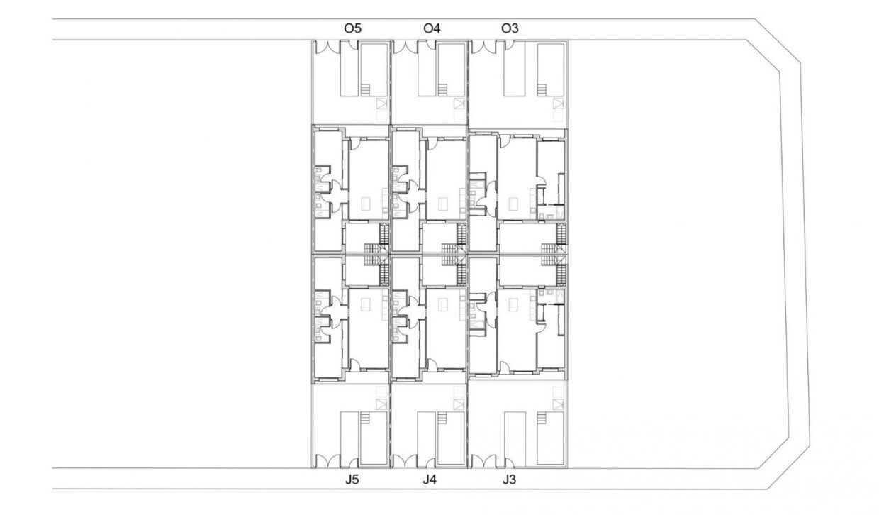
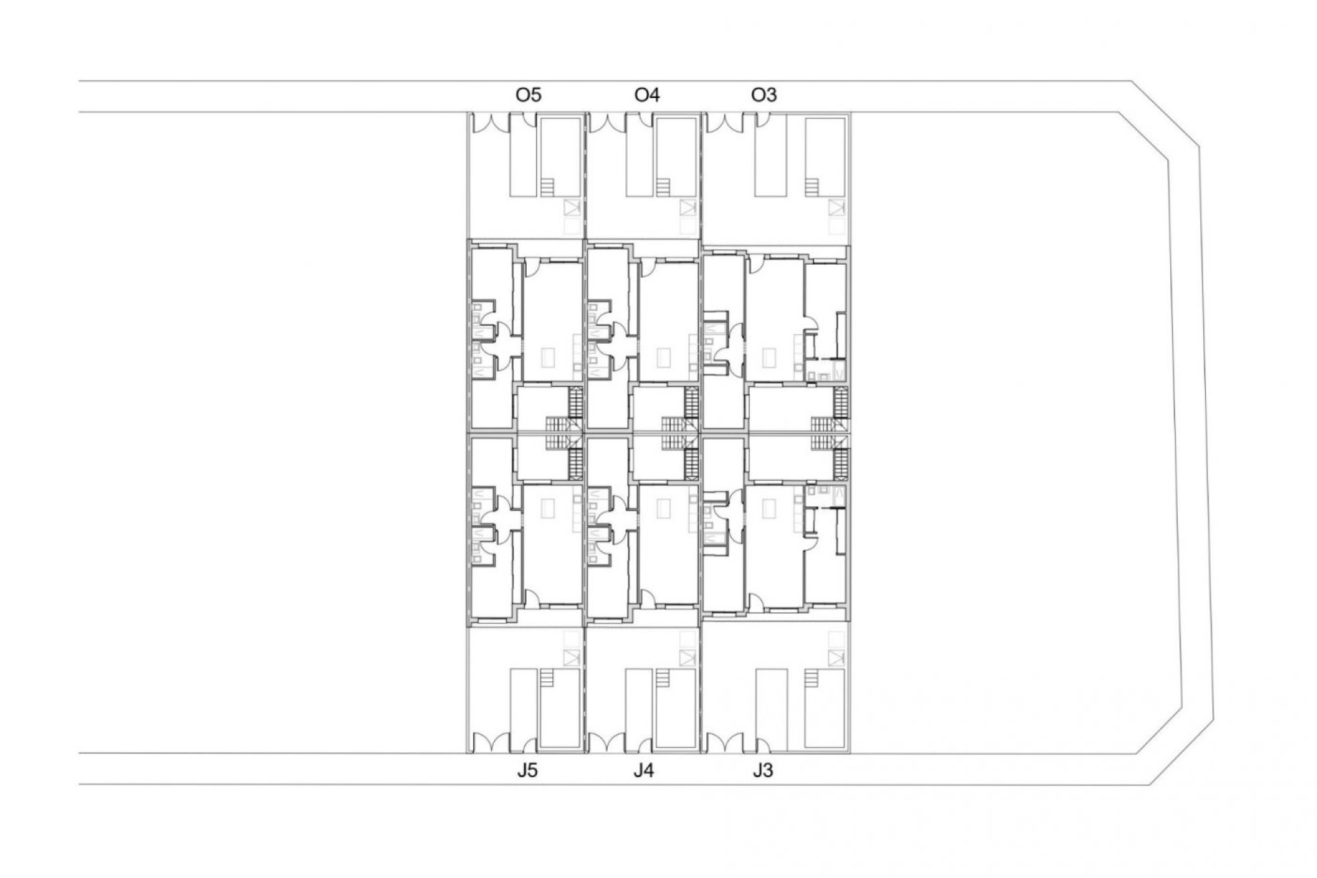
NIEUWBOUW HERENHUIZEN IN SAN JAVIER
Nieuwbouw luxe complex van 24 gelijkvloerse villa's of op 2 verdiepingen met prive zwembad, terras en solarium met zomerkeuken die u toelaat om alle uren van de zon te genieten, elke dag van het jaar.
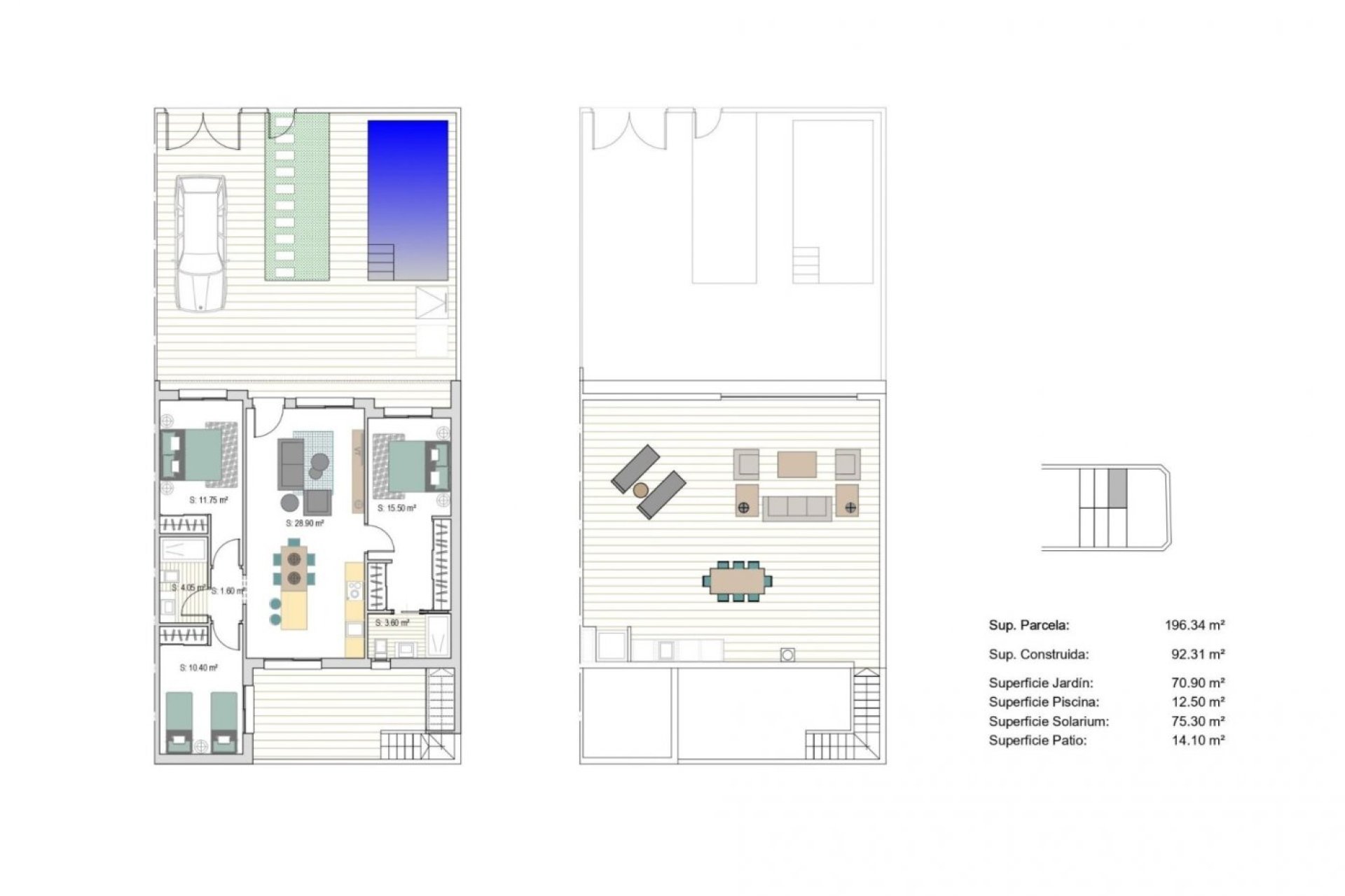
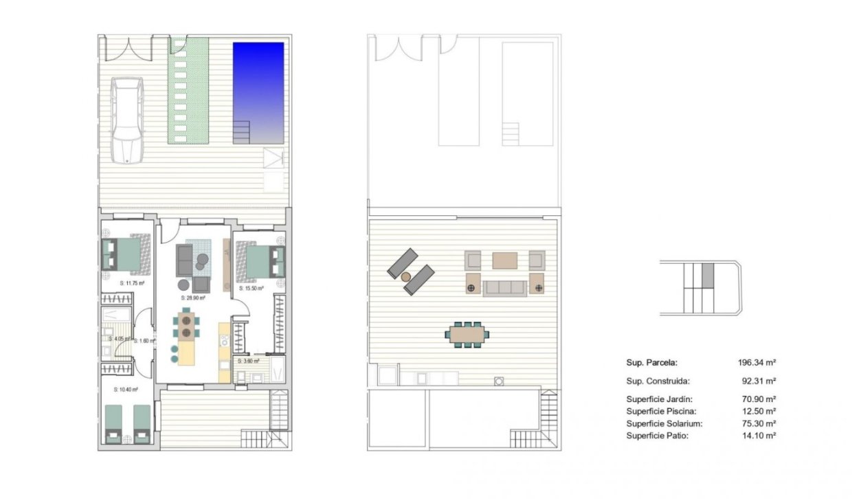
Elke villa heeft 2 of 3 slaapkamers en 2 badkamers op één niveau of 3 slaapkamers en 3 badkamers op twee niveaus.
Ontworpen met een eigentijdse stijl en een open concept, bestaande uit een volledig uitgeruste keuken en een woon-eetkamer.
Het project is gelegen in San Javier (Murcia), vlakbij het strand, omgeven door diensten, parken, sportfaciliteiten en verschillende golfbanen.
De woning zal voldoen aan de hoogste normen en zal worden uitgerust met:
Prive zwembad met douche.
Keuken volledig ingericht en uitgerust met oven, magnetron, koelkast, geïntegreerde vaatwasser, kookplaat en afzuigkap.
Verlichting: zowel in het huis (eetkamer, keuken, gangen en badkamers) als in de buitenruimtes.
Beklede kasten met laden.
Volledig ingerichte badkamers met toilet, badmeubel, spiegel en douche met hor panelen.
Pre-installatie voor airconditioning via leidingen.
Solarium met zomerkeuken.
Parkeerplaats op het perceel.
San Javier ligt dicht bij alle voorzieningen met gemakkelijke toegang tot het strand, watersporten, winkels en het transportnetwerk.
Hier kunt u genieten van alle faciliteiten die San Javier te bieden heeft, zoals de plaatselijke winkels, bars en restaurants, maar ook in de buurt van winkelcentra, de luchthaven van Murcia en alle mooie plekjes die te vinden zijn langs de Mar Menor.
De luchthaven van Corvera/Murcia ligt op 30 minuten en die van Alicante op 45 minuten.
712