NIEUWBOUW WOONCOMPLEX IN ROJALES
Nieuwbouw wooncomplex met bungalowappartementen, herenhuizen en geschakelde villa's in Rojales.
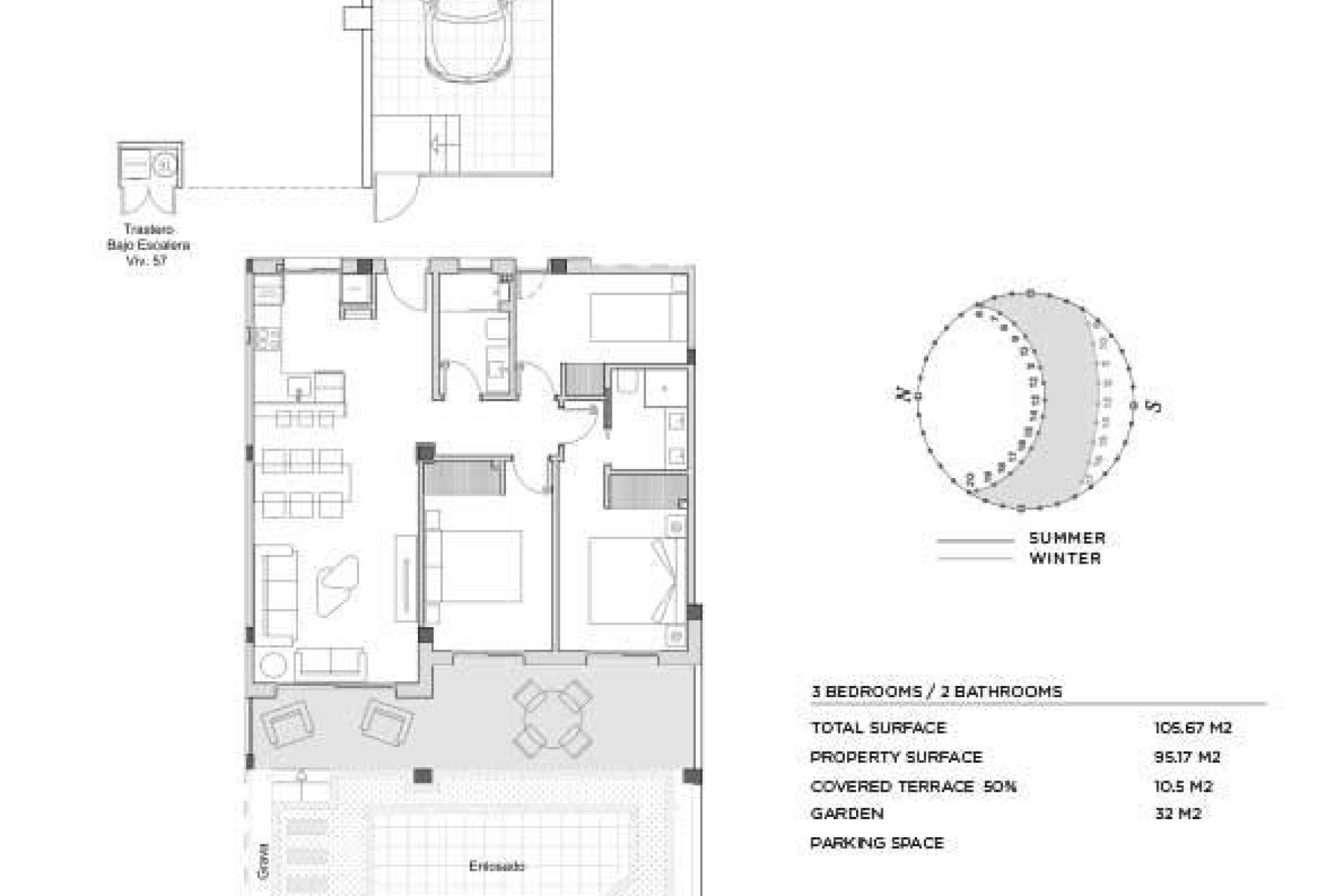
Moderne nieuwbouw bungalow appartementen met 2 en 3 slaapkamers op 2 verdiepingen: begane grond met privé tuin en eerste verdieping met privé dakterras.
Moderne herenhuizen gebouwd over 2 verdiepingen en heeft 3 slaapkamers, 2 badkamers, open keuken en de woonkamer, inbouwkasten, terrassen, een eigen tuin en solarium.
Moderne halfvrijstaande villa's gebouwd over 2 verdiepingen en heeft 3 slaapkamers, 2 en 3 badkamers, open keuken en de woonkamer, inbouwkasten, terrassen, eigen tuin en solarium.
Privé woonwijk met groene zones, zwembad en privé parkeerplaats.
Met alle noodzakelijke diensten binnen handbereik: supermarkten, golfbanen, restaurants, gezondheidscentra.
Rojales is een traditioneel agrarisch stadje dat is uitgegroeid tot een van de favoriete bestemmingen in het binnenland van Vega Baja, dankzij de strategische ligging in de buurt van de N-332 en de AP-7.
Dankzij de uitstekende bereikbaarheid bereik je de luchthaven van Alicante in 20 minuten en kun je in 15 minuten genieten van de stranden van Guardamar, La Mata of Torrevieja.
Rojales biedt een rijk en gevarieerd gastronomisch en recreatief aanbod, en heeft de prestigieuze golfbaan La Marquesa Golf.
Rojales is een mooi dorp met alle voorzieningen zoals supermarkten, apotheken, banken, restaurants en een natuurpark vlakbij de villa's.
La Marquesa Golf is een van de meest historische banen aan de Costa Blanca, met 18 holes en een die net zo bijzonder is als de 17e hole op Sawgrass. Traditie, kwaliteit en ervaring komen samen om golfers die ons bezoeken een unieke ervaring te bieden, vol geschiedenis waar.