Semidetached / Nieuwbouw Woningen Fuente Álamo · Murcia

€242.000 #REF: N6871

Semidetached / Nieuwbouw Woningen Fuente Álamo · Murcia

Belangrijkste kenmerken

SLEUTELKLARE HALFVRIJSTAANDE VILLA IN FUENTE ALAMO, MURCIA

#REF: N6871
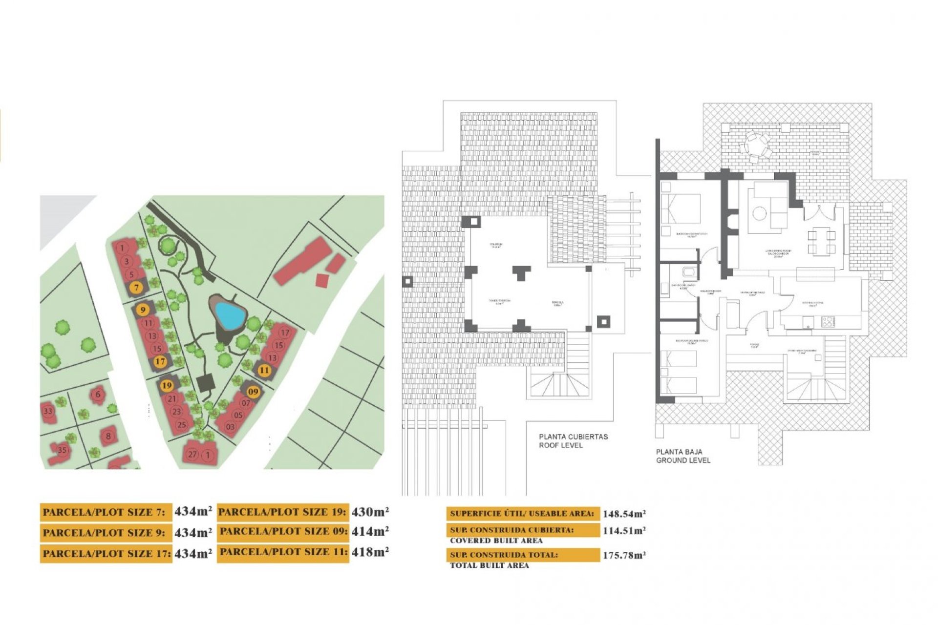
  • 175m2
  • 430m2
  • 2
  • 1
Kamers: 2
Badkamers: 1
Gebouwd: 175m2
Nuttig: 148m2
Perceel: 430m2

Kenmerken

Afstand naar het strand: 7500 Mts.
Afgesloten
Aantal parkeerplaatsen: 1
Dichtbij golfresort
2 persoonskamer: 2
Tuin
Air Conditioning: Vooraf geïnstalleerd
Instapklaar
Terrace: 45 Msq.
Parkeren - ruimte
Locatie: Kust, Bergachtig, Urbanisatie
Strand: 7500 Meters
Useable Build Space: 148 Msq.
Storage / Trastero

Beschrijving

Plaats

IBERO HOMES Stel uw vraag

Contact via WhatsApp
Responsable del tratamiento: Gold Spanish Property, SL, Finalidad del tratamiento: Gestión y control de los servicios ofrecidos a través de la página Web de Servicios inmobiliarios, Envío de información a traves de newsletter y otros, Legitimación: Por consentimiento, Destinatarios: No se cederan los datos, salvo para elaborar contabilidad, Derechos de las personas interesadas: Acceder, rectificar y suprimir los datos, solicitar la portabilidad de los mismos, oponerse altratamiento y solicitar la limitación de éste, Procedencia de los datos: El Propio interesado, Información Adicional: Puede consultarse la información adicional y detallada sobre protección de datos Aquí.
WhatsApp