Villas neuves à San Fulgencio avec piscine privée et design moderne
Promotion exclusive de 7 villas indépendantes orientées sud sur la Costa Blanca
Découvrez cette promotion attrayante de 7 villas modernes et indépendantes à San Fulgencio, une charmante commune de la province d'Alicante. Conçues dans un style contemporain et orientées sud pour maximiser la lumière naturelle, ces maisons allient confort, qualité et emplacement idéal sur la Costa Blanca sud.
Distribution fonctionnelle et espaces extérieurs
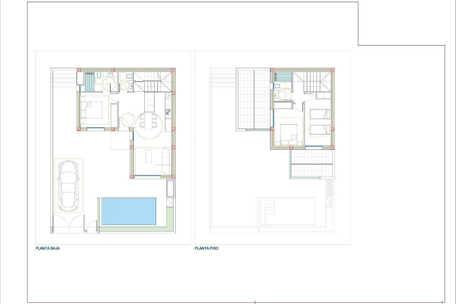
Les villas sont réparties sur deux étages et offrent une excellente distribution intérieure :
3 chambres spacieuses, dont une au rez-de-chaussée
2 salles de bains complètes et 1 toilette supplémentaire
Cuisine ouverte entièrement équipée avec appareils électroménagers inclus
Salon lumineux avec accès à l'extérieur
À l'extérieur, chaque maison dispose de :
Une piscine privée de 3 x 5 mètres
Un parking sur le terrain
Deux terrasses ouvertes à l'étage supérieur, idéales pour profiter du soleil toute la journée
Qualités supérieures et efficacité énergétique
Les villas sont construites avec des matériaux haut de gamme et axées sur la durabilité :
Volets électriques
Menuiserie extérieure avec double vitrage
Système d'aérothermie pour l'eau chaude
Pré-installation de la climatisation par conduits
Salles de bains équipées de meubles, parois et miroirs
Emplacement stratégique à San Fulgencio
San Fulgencio offre la tranquillité d'un environnement résidentiel avec tous les services à portée de main, tels que restaurants, supermarchés, pharmacies et plus encore. De plus, son excellent emplacement permet d'accéder facilement aux principaux points d'intérêt de la région :
Plage de La Marina – 7 km
Guardamar del Segura – 10 km
Camp de golf La Marquesa (Ciudad Quesada) – 6 km
Centre de Torrevieja – 18 km
Aéroport international d'Alicante-Elche – 30 km
Idéal pour vivre, investir ou profiter de vos vacances
Ces villas représentent une opportunité unique tant pour une résidence permanente que pour un investissement immobilier dans l'une des zones les plus prisées du sud de la Costa Blanca. Que ce soit pour profiter du soleil méditerranéen ou comme résidence secondaire, ce projet offre qualité, design et un excellent emplacement.
Contactez-nous dès aujourd'hui pour plus d'informations ou pour planifier votre visite et découvrir votre nouvelle maison à San Fulgencio.